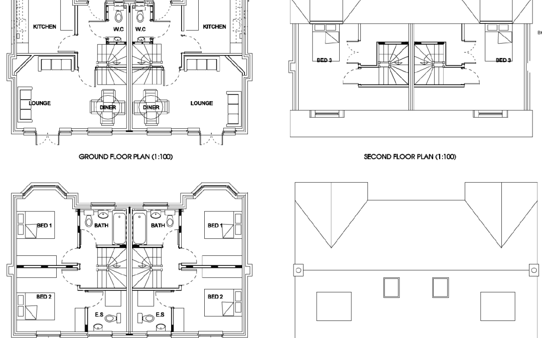
Development of garden into two semi detached homes

Development of garden into two semi detached homes

A detached house on a corner plot with a long rear garden received planning permission to add a pair of attractive semi-detached homes in the rear of the plot. These have now been built and sold by a developer we introduced.
Barn conversion

Barn conversion

This detached ‘L’ shaped house from a previous barn conversion received planning approval for an extra wing to create a large family home.
Corner plot maximisation (Hemel)

Corner plot maximisation (Hemel)

A large detached house on a large corner plot was crying out to have a development approved to maximise its value. Planning permission was obtained for a pair of semi-detached houses on the available land whilst retaining a good family garden for the original detached...
Bungalow to 3 Terraced Houses

Bungalow to 3 Terraced Houses

Our client approached us to maximise the value of their property, a corner plot with an ageing bungalow. We drew up plans to knock the bungalow down and replace it with 3 terraced townhouses. These townhouses with their modern grey windows and bi-fold doors provided...
New build on corner plot

New build on corner plot

We were approached by our client who had a large corner plot which he thought had potential for development. We visited the site and made our recommendations. We were then commissioned to draw and submit plans for the construction of a two bedroom bungalow based on...