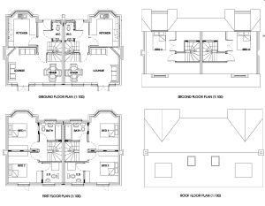
Prestige Projects planning permission Dacorum