Projects
-

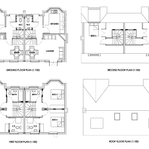
Development of garden into two semi detached homes
A detached house on a corner plot with a long rear garden received planning permission to add a pair of attractive semi-detached homes in the rear of the plot. These have now been built and sold by a developer we introduced.
-

Barn conversion
This detached ‘L’ shaped house from a previous barn conversion received planning approval for an extra wing to create a large family home.
-

Corner plot maximisation (Hemel)
A large detached house on a large corner plot was crying out to have a development approved to maximise its value. Planning permission was obtained for a pair of semi-detached houses on the available land whilst retaining a good family garden for the original detached property.
-

Maximising a triple garage loft space
This project was to extend over an existing triple garage to create a large space for our clients preferred use.
The design was created to blend sympathetically with the existing building and we introduced a builder who ensured that the materials used all blended seamlessly with the original building.
Maximising the light was a particular requirement.
The project was completed on time and within budget.
-

An Ambitious Proposal
This property being on a steep slope afforded the benefit of a basement for garaging and a gym.
The roof provided a very usable space for two bedrooms with en-suites.
The entrance hall and stairs provided a beautiful light centre to the whole home.
The conservatory style kitchen/family room is a stunning feature.
Air conditioning and underfloor heating feature on every floor.
Spectacular gates and other features really enhance the overall effect.




